NUVIA
NUVIA
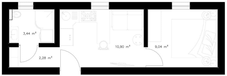
Single-module house Year-round
Total area: 35.7 m2
Usable area: 28 m2
Total height: 3.4 m
Number of bedrooms: 1
SPECIFICATION
SPECIFICATION
- External walls: U = 0.19 W/m2K
- Floor: U = 0.24 W/m2K
- Roof: U = 0.15 W/m2K
- Energy efficiency according to the German KfW 55 standard
EXTERIOR AND INTERIOR DECORATION
EXTERIOR AND INTERIOR DECORATION
- Fully finished facade (combination of thermally modified wood and standing seam metal panels), roof covering , windows and doors
- Walls and ceilings: plasterboard painted white, with
decorative elements made of wood
- Floor: parquet
- Bathroom: ceramic tiles on the floor and walls, complete sanitary equipment
- Kitchen: worktop with HPL panel, cabinets made of furniture panels,
household appliances (electric hob, oven, hood), sink and
built-in battery
INTERNAL INSTALLATIONS
INTERNAL INSTALLATIONS
- Electrical installation with whiteware
- Water and sewage installation
- Wall recuperator
- Electric underfloor heating
- 100l domestic water heater
- Possibility of connecting to alternative energy sources
OFFER DOES NOT INCLUDE
OFFER DOES NOT INCLUDE
- Crane services
- Foundations
- Connection to external networks
Share
Couldn't load pickup availability

m2
REVIEW
- Prefabricated two-module residential house designed for comfortable use all year round!
- A modern, energy-efficient house using prefabricated technology.
- Delivered from the factory in two modules, almost ready for use.
- Designed for comfortable living all year round.
Customize your home! Choose every detail.
The finishing standard and individual elements of the offer, such as the shape, color, and roof covering, the color and type of joinery, and the type of heating (e.g., heat pump), can be changed. Please contact our Customer Service Department to prepare a customized offer with the desired changes.