BELLWOOD
BELLWOOD
Dom dwumodułowy Całoroczny
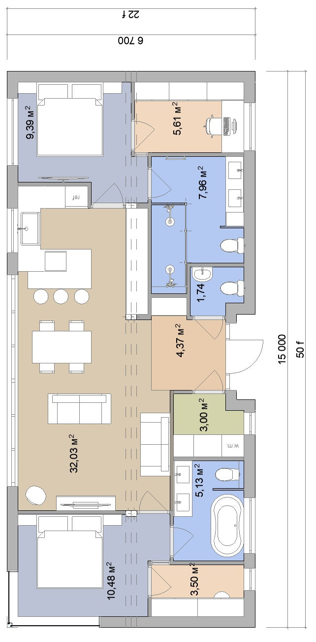
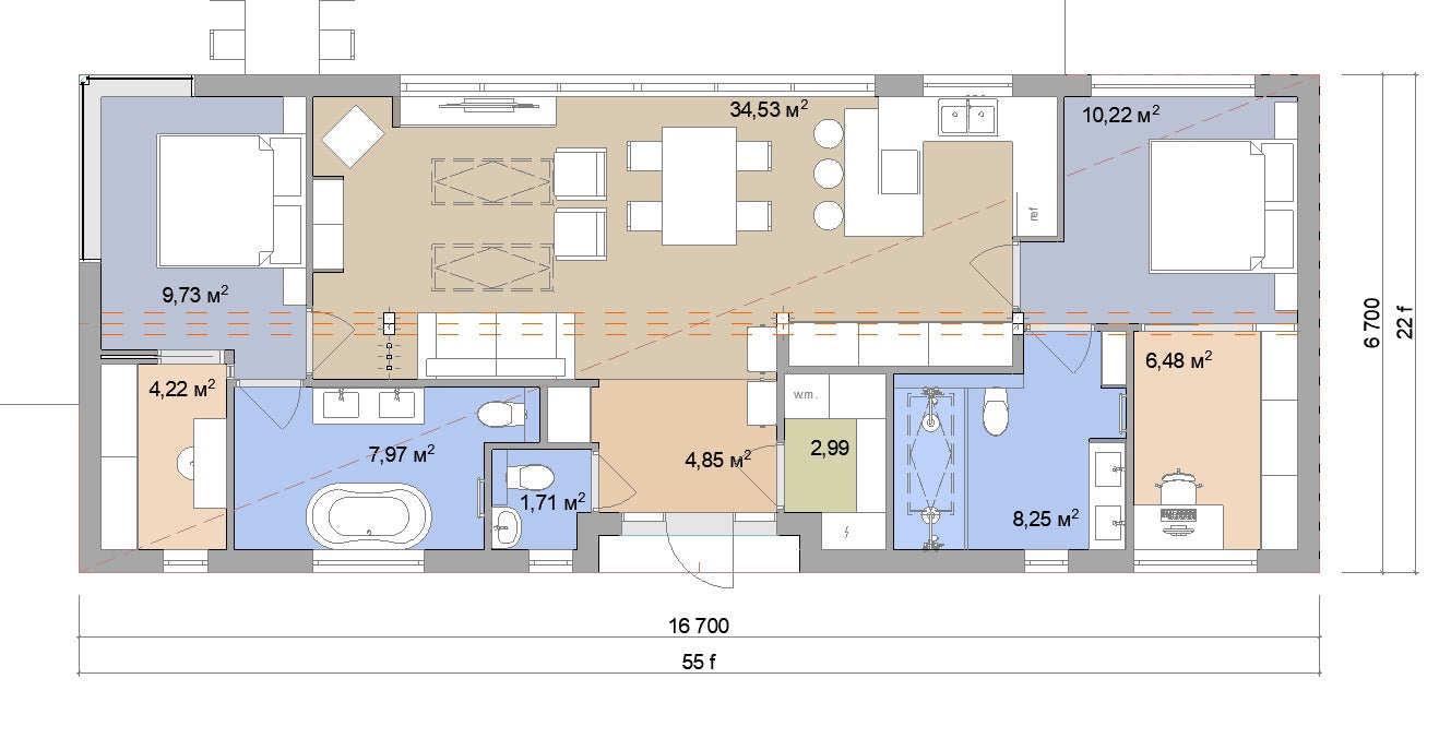
Powierzchnia całkowita: 100,5 m2
Powierzchnia użytkowa: 83 m2
Wysokość całkowita: 3,6 m
Liczba sypialni: 2
SPECYFIKACJA
SPECYFIKACJA
- Ściany zewnętrzne: U = 0,19 W/m2K
- Podłoga: U = 0,24 W/m2K
- Dach: U = 0,15 W/m2K
- Efektywność energetyczna zgodnie z niemiecką normą KfW 55
DEKORACJA ZEWNĘTRZNA I WEWNĘTRZNA
DEKORACJA ZEWNĘTRZNA I WEWNĘTRZNA
- W pełni wykończona elewacja (połączenie drewna modyfikowanego termicznie i paneli metalowych na rąbek stojący), pokrycie dachowe, okna i drzwi
- Ściany i sufity: płyta gipsowo-kartonowa pomalowana na biało, z
elementami dekoracyjnymi wykonanymi z drewna
- Podłoga: parkiet
- Łazienka: płytki ceramiczne na podłodze i ścianach, kompletne wyposażenie sanitarne
- Kuchnia: blat roboczy z panelem HPL, szafki z paneli meblowych ,
sprzęt AGD (płyta elektryczna, piekarnik, okap), zlewozmywak i
bateria w zabudowie
INSTALACJE WEWNĘTRZNE
INSTALACJE WEWNĘTRZNE
- Instalacja elektryczna wraz z białym montażem
- Instalacja wodno-kanalizacyjna
- Rekuperator ścienny
- Elektryczne ogrzewanie podłogowe
- Podgrzewacz wody użytkowej 100l
- Możliwość podłączenia do alternatywnych źródeł energii
OFERTA NIE ZAWIERA
OFERTA NIE ZAWIERA
- Usługi dźwigowe
- Posadowienia
- Połączenie z sieciami zewnętrznymi
Share
Nie można załadować gotowości do odbioru

m2
RECENZJA
- Prefabrykowany dwumodułowy dom mieszkalny zaprojektowany z myślą o komfortowym użytkowaniu przez cały rok!
- Nowoczesny, energooszczędny dom w technologii prefabrykowanej.
- Dostarczany z fabryki w dwóch modułach w niemal pełnej gotowości do użytkowania.
- Zaprojektowany z myślą o komfortowym mieszkaniu przez cały rok.
Dostosuj swój dom! Dobierz każdy szczegół.
Standard wykończenia i poszczególne elementy oferty takie jak np. kształt, kolor i pokrycie dachu, kolor i rodzaj stolarki, rodzaj ogrzewania (np. pompa ciepła) można zmienić. Zapraszamy do kontaktu z Biurem Obsługi Klienta w celu przygotowania indywidualnej oferty z wybranymi zmianami.