VERO 133
VERO 133
Dom z poddaszem użytkowym z montażem, w stanie deweloperskim
Dostawa do Łodzi i montaż na terenie całej Polski są wliczone w cenę
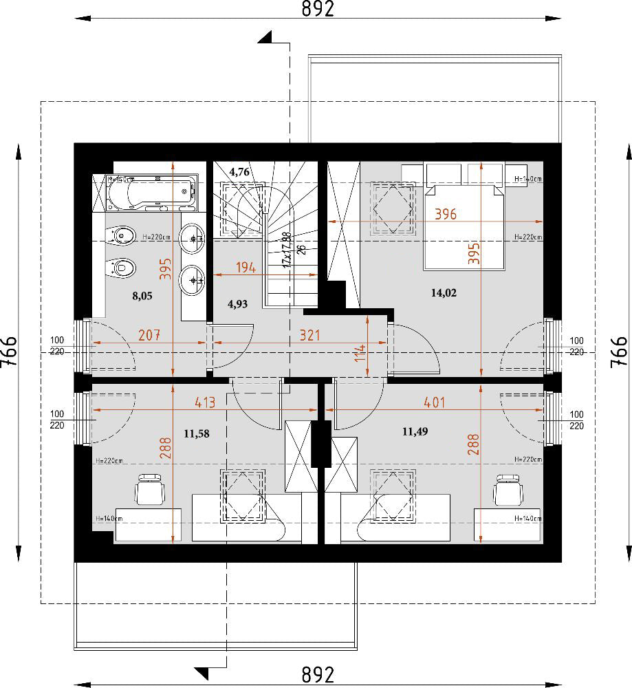
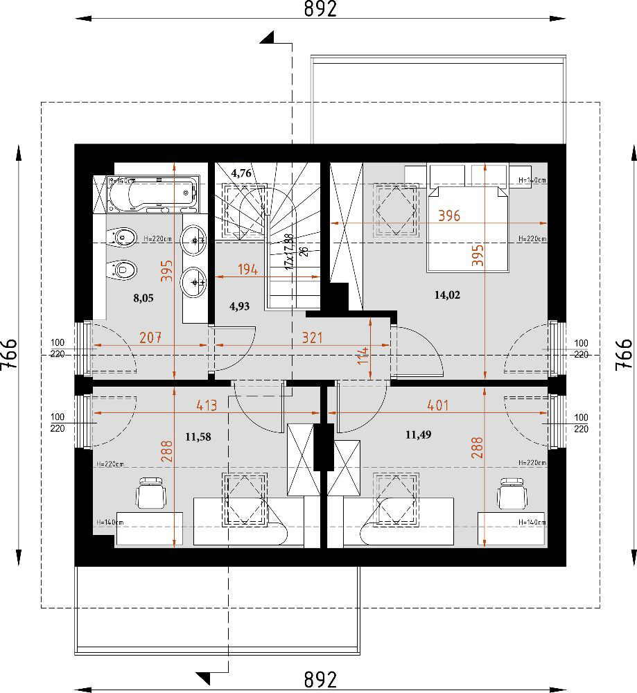
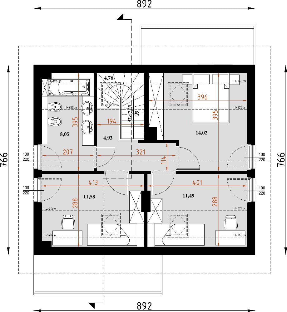
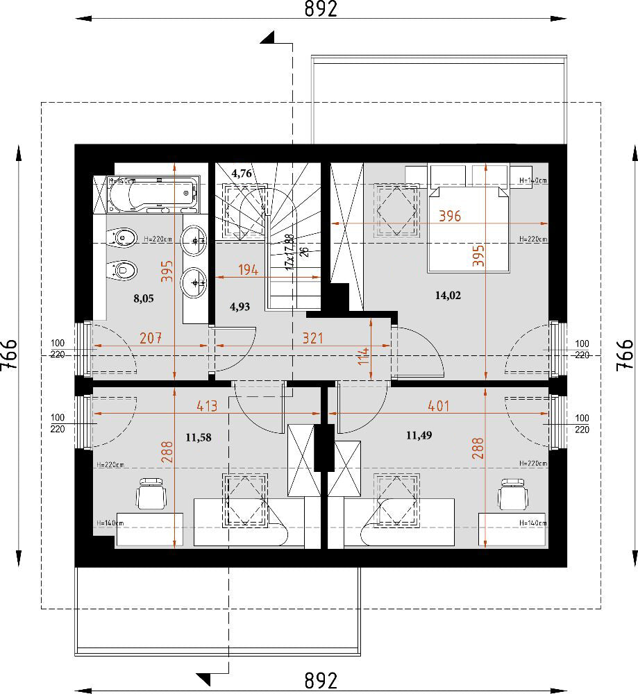
Pow. użytkowa: 90,9 m2
Wymiary domu: 8,9 m x 7,7 m
Liczba sypialni: 4
DANE TECHNICZNE
DANE TECHNICZNE
- Ściany zewnętrzne: U = 0,11 W/m2K
- Dach: U = 0,11 W/m2K
- Efektywność energetyczna: zgodność z niemieckim standardem KfW 40+
WYKOŃCZENIE ZEWNĘTRZNE
WYKOŃCZENIE ZEWNĘTRZNE
- Fasada: dodatkowo ocieplona i pokryta dekoracyjnym tynkiem
silikonowym
- Okna: PVC VEKA VP82, profil 7-komorowy, potrójne szklenie,
najwyższe parametry jakościowe
- Drzwi wejściowe: drewniane, odporne na warunki atmosferyczne
- Dach: gotowe pokrycie dachowe oraz system rynnowy
WYKOŃCZENIE WEWNĘTRZNE
WYKOŃCZENIE WEWNĘTRZNE
- Ściany i sufity: obłożone płytą gipsowo-kartonową bez szpachlowania
- Podłoga parteru: ocieplona wylewka oraz wodne ogrzewanie
podłogowe
WYPOSAŻENIE TECHNICZNE
WYPOSAŻENIE TECHNICZNE
- Instalacja elektryczna: w pełni rozprowadzone przewody od
rozdzielnicy do puszek i punktów oświetleniowych
- Instalacja sanitarna: montaż rur wodnych i kanalizacyjnych
- Wentylacja: niezależne rekuperatory w sypialniach i łazienkach
OFERTA NIE ZAWIERA
OFERTA NIE ZAWIERA
- Fundamentu
- Usługi dźwigowe
- Połączenie z sieciami zewnętrznymi
Share
Nie można załadować gotowości do odbioru

m2
RECENZJA
- Dom energooszczędny w technologii prefabrykowanej.
- Produkowany w zakładzie z pełną kontrolą jakości.
- Dostarczany w panelach i montowany bezpośrednio na działce.
- Przeznaczony do komfortowego zamieszkania przy niskich kosztach utrzymania.
Dostosuj swój dom! Dobierz każdy szczegół.
Standard wykończenia i poszczególne elementy oferty takie jak np. kształt, kolor i pokrycie dachu, kolor i rodzaj stolarki, rodzaj ogrzewania (np. pompa ciepła) można zmienić. Zapraszamy do kontaktu z Biurem Obsługi Klienta w celu przygotowania indywidualnej oferty z wybranymi zmianami.